Architecture Ingénierie Intérieurs

Réhabilitation atelier d’artiste

Appartements

Réhabilitation atelier d'artiste

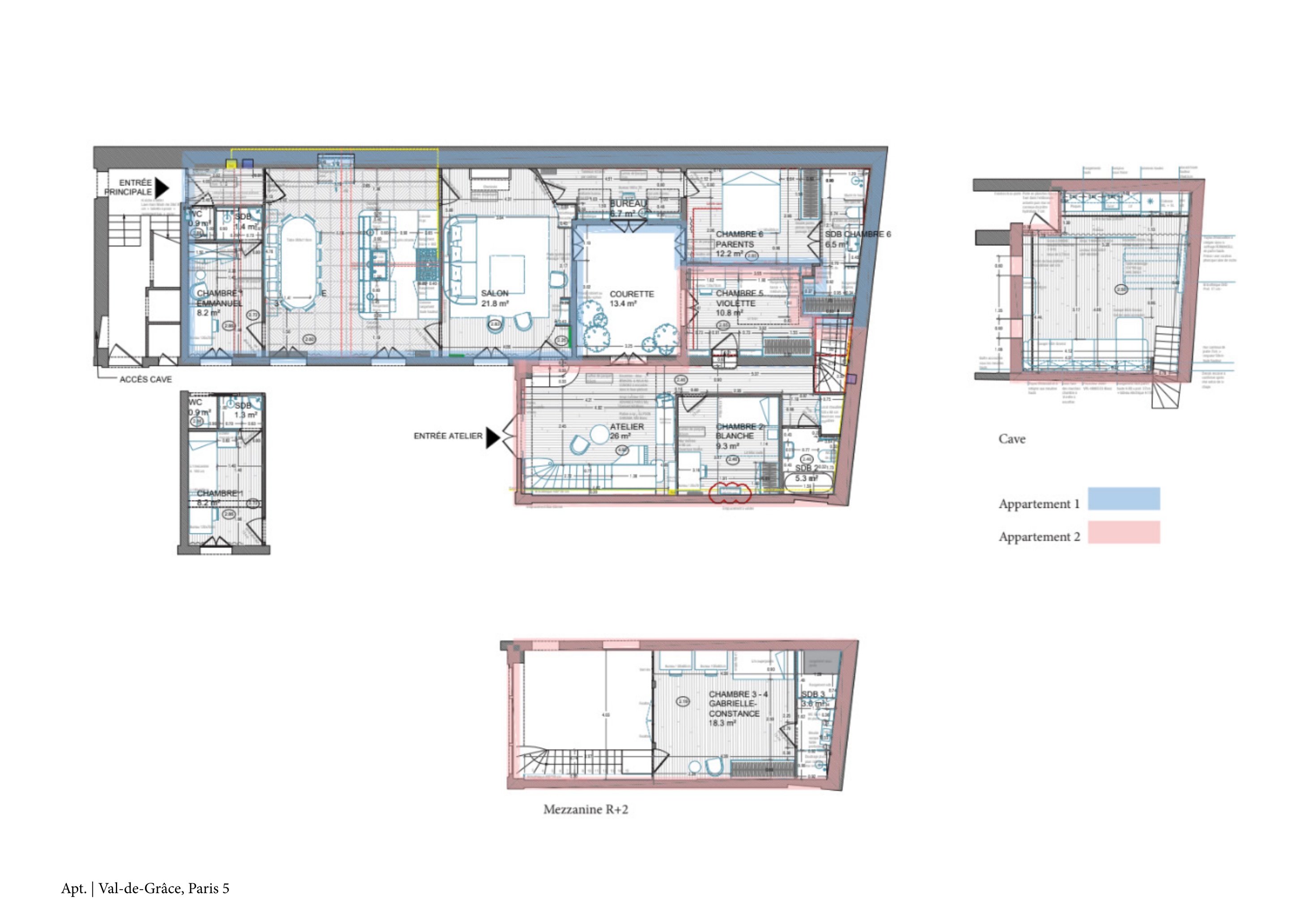
Apt. | Val-de-Grâce, Paris 5


Surface
180 m²
Localisation
Val-de-Grâce, Paris 5
Client
Client privé
Année
2022
Budget travaux
500 000 €
Durée des travaux
8 mois
Mission LBA
Architecte, Décorateur et BET Structure
Réhabilitation atelier d'artiste — vue 1
Réhabilitation atelier d'artiste — vue 2
Réhabilitation atelier d'artiste — vue 3
Réhabilitation atelier d'artiste — vue 4
Réhabilitation atelier d'artiste — vue 5
Réhabilitation atelier d'artiste — vue 6
Réhabilitation atelier d'artiste — vue 7
Réhabilitation atelier d'artiste — vue 8